Hampton Rd II
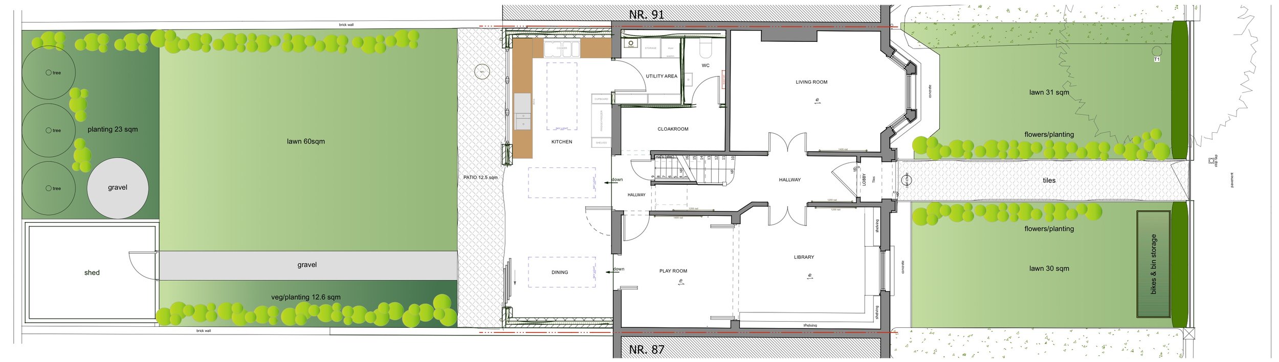
We are appointed to transform this wonderful terraced Victorian property in the Woodgrange Conversation Area into a family home with a strong connection with the garden. The works include the demolition and replacement of the rear extension and garden shed and major refurbishment throughout.
Size: 180 sqm
Status: Technical design, 2022
